A

RESIDENCIA INTERGENERACIONAL

Edificio de residencia intergeneracional de Romo

Estado: Consurso, 2º puesto

Cliente: Azpiegiturak

Ubicación: Romo, Getxo

Tipo de obra: Equipamiento residencial

Superficie: 8.300m2

Año: 2021

Equipo/Colaboradores: Arquiplan 2.0

B
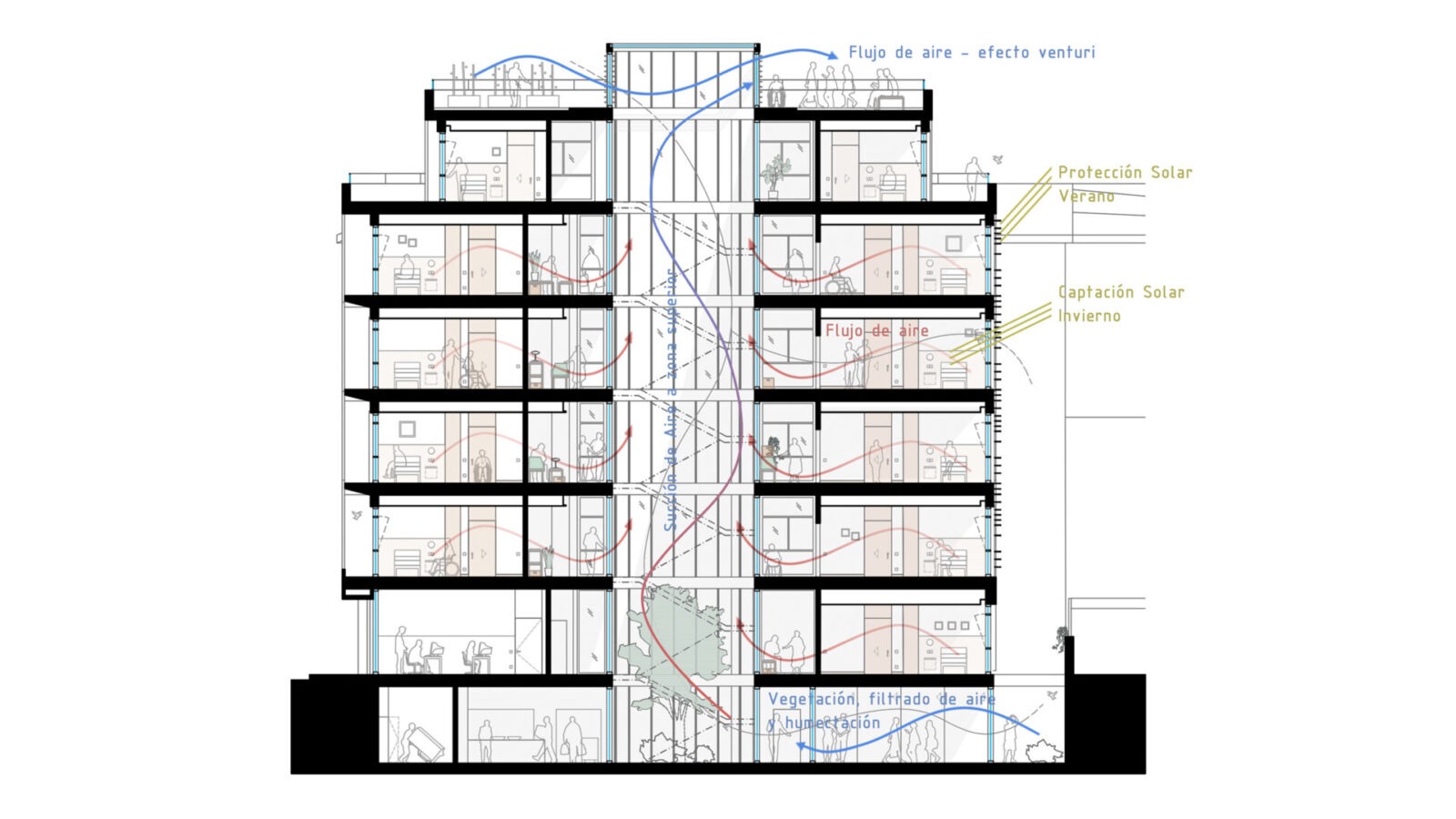
La nueva residencia intergeneracional de volumetría compacta y sencilla y materialidad pétrea, distribuido en dos volúmenes a través de un gran espacio común pasante, potencia la convivencia entre las personas jóvenes y las personas mayores. El edificio dispone de dos accesos peatonales: el de la calle Lope de Vega es un acceso público, concebido tanto para visitas como para el vecindario del barrio; el segundo acceso, tras el filtro de la pequeña plazoleta de la iglesia de la calle Kresaltzu, queda como entrada más resguardada y privada, exclusiva para las personas residentes. Ambos accesos peatonales dan al gran espacio común pasante. Se concibe este, distribuido entre los volúmenes de viviendas dotacionales (ADAS) y de habitaciones para mayores, como un espacio de relación intergeneracional donde se concentran los usos de carácter público como los vestíbulos, los dos núcleos de comunicación de carácter público, las zonas de visitas, las zonas de estar y los comedores, entre otros. Asimismo, entre el gran espacio común y las habitaciones de las personas mayores, se intercalan varios espacios intermedios, más acotados e íntimos, de estancia y de encuentro, con iluminación natural. El espacio central pasante (con iluminación natural y ventilación cruzada) se prolonga hacia el exterior a través de una terraza comunitaria en cada planta.
A favor de la versatilidad de las zonas comunes, se ha optado por un mobiliario modular apilable y no apilable.
Además, se diseña la cubierta plana como un espacio para actividades al aire libre, cubierta ajardinada perimetralmente apta para el cultivo y con zonas verdes. Se proyecta con una zona de comedor al aire libre, zona cubierta de sofás y mesas, zona deportiva para cualquier persona del centro, así como con equipamientos de gimnasia para mayores y una zona de solárium a sur.
En cuanto a la materialidad y construcción, en la fachada ventilada se combinan la piedra y la madera, esta última en los huecos que corresponden a los balcones de las viviendas dotacionales y en los aleros de las habitaciones de las personas mayores. Se pretende crear una imagen unitaria y homogénea del conjunto, la estética y materiales utilizados son similares a los que se pudieran utilizar en un bloque residencial, usando una geometría sencilla sin alardes volumétricos ni de materiales excesivamente llamativos.
C1
C2
C3
C4
C5
D1
D2
D3
D4
E
F1
F2
F3
F4
F5
F6
G

OTROS PROYECTOS

A

CUBIERTA AIETE

A

RESIDENCIA INTERGENERACIONAL

A

BASALDUA_ETXEA