A

ESTUDIO LA SALVE

Estudio arquitectura

Estado: Construido

Cliente: Muga-arquitectura

Ubicación: Bilbao

Tipo de obra: Espacio de trabajo

Superficie: 45m2

Año: 2020

B
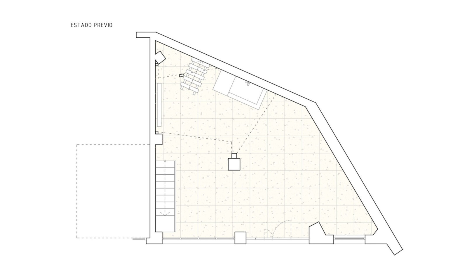
El estudio de unos 45 m2 de superficie se sitúa en el número 15 de la Calle La Salve, en el bajo de un bloque residencial. Originalmente, en el local se distribuían alrededor de un pilar central de hormigón revestido: una única estancia diáfana en planta baja y una entreplanta superior, constituido por un entramado de vigas y viguetas de madera; un pequeño aseo y una zona de office y almacenaje, ambas con acceso a través de una escalera independiente. La fachada del local estaba compuesta por tres vanos de madera y vidrio de diferentes dimensiones.
El proyecto de reforma se basa principalmente en la apertura y cohesión entre el espacio central diáfano y el espacio exterior mediante la sustitución de los tres vanos existentes por tres nuevos planos de vidrio y así permitir la mayor entrada de luz natural posible al interior.
Se organizan tres zonas principales en torno al pilar central: una zona de trabajo junto al vano más grande de vidrio fijo; otra zona destinada a la recepción de visitas y a reuniones; y un espacio polivalente donde se agrupan los usos de office, impresión y almacenaje. La intervención en el local se hace con los medios económicos y materiales limitados, lo que nos lleva a construirlo prácticamente con nuestras manos, con una premisa: partir de la potencialidad y dignidad de los materiales existentes, e integrando los sencillos muebles estandarizados en un diseño personalizado. En cuanto a los materiales, se combinan la textura rugosa del pilar de hormigón central, el color negro de la estructura metálica de la entreplanta y las nuevas carpinterías de aluminio, el color blanco de las paredes y los techos y la calidez de la madera en el forrado de los muebles de almacenaje, las mesas de trabajo, las celosías y en la escalera que sube al baño y a la entreplanta.
C1
C2
C3
C4
D1
D2
D3
D4
E
F1
F2
F3
F4
G

OTROS PROYECTOS

A

MPS es CPE

A

RESIDENCIA INTERGENERACIONAL

A

HARRI ETA EGUR