A

BASALDUA_ETXEA

Vivienda Unifamiliar en Orduña

Estado: En Obra

Cliente: Privado

Ubicación: Barrio Basaldua, Orduña

Tipo de obra: Vivienda unifamiliar

Superficie: 250m2

Año: 2024-Presente

B
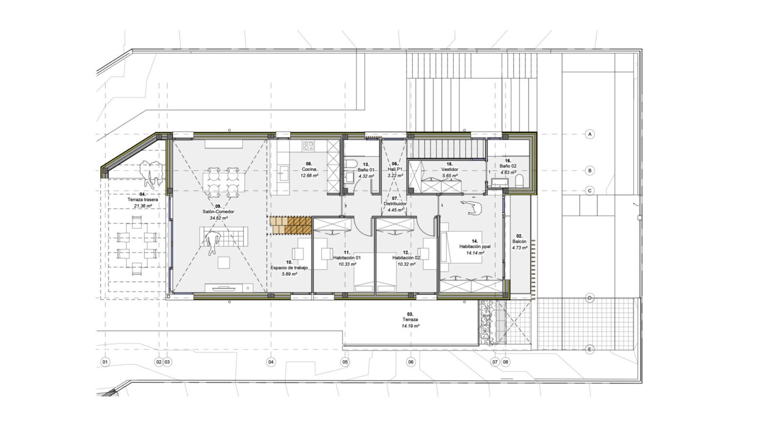
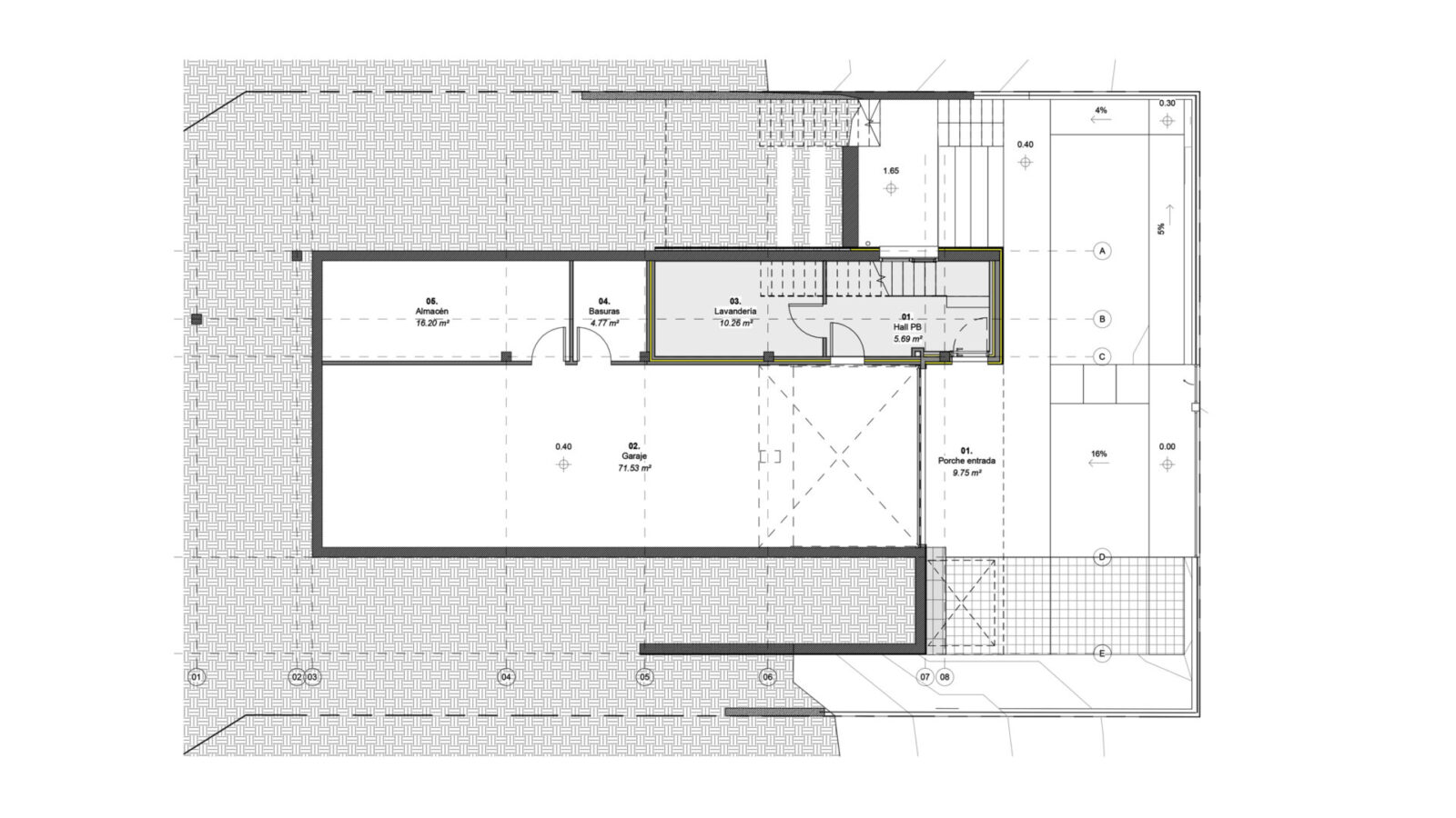
La vivienda unifamiliar de tres plantas (planta baja, planta primera y planta altillo) se sitúa en una parcela con una pendiente pronunciada, en el barrio de Basaldua, cerca del convento de la Antigua en Orduña (Bizkaia). La vivienda se retranquea 5m con respecto a la calle, generando una zona de acceso peatonal accesible y rodado a la parcela, rematado con un porche.
Se trata de un volumen paralelepípedo con una cubierta a dos aguas semienterrado en la planta baja que se abre hacia el exterior en la planta primera y, en cuanto a la escala se refiere, se adapta ligeramente al perfil del terreno.
Debido a la incipiente pendiente del solar se han distribuido las estancias vivideras en la planta primera y se han organizado el garaje, el portal de entrada accesible a la vivienda con una escalera que comunica ambas plantas (se ha reservado un espacio para la instalación de un ascensor en el fututo), la lavandería, el almacén y el cuarto de instalaciones en la planta baja (con tres fachadas parcial y completamente enterradas). Se concibe el altillo como un lugar de estancia y de juego. La entrada principal de la vivienda se emplaza en el lateral este: se dispone de una escalera que va acompañada por unas pequeñas bancadas ajardinadas que siguen el perfil del terreno. En el lateral suroeste se extiende una rampa de acceso vegetal, así como una zona allanada que se prolonga hasta la zona trasera de la vivienda, disponiendo de dos terrazas (la terraza del oeste y la terraza trasera protegida mediante un porche) alrededor de la vivienda. Toda la planta primera se abre hacia el exterior, principalmente las tres habitaciones (la habitación principal dispone de un balcón) y el salón-comedor. En la parte trasera de la vivienda se diseña un jardín escalonado como prolongación de la terraza trasera.
En cuanto a la construcción se refiere, se opta por una estructura de hormigón armado conformado por muros de contención, losas, pilares y vigas de canto y un cerramiento compuesto por una hoja de bloque de termo arcilla, un trasdosado y un SATE con acabado de plaqueta blanca y gris oscuro, además de mortero acrílico de color gris oscuro. En el encuentro entre ambos materiales destaca la franja de madera que envuelve las cuatro fachadas del edificio y las lamas del balcón de la habitación principal.
La cubierta a dos aguas se resuelve mediante una cobertura de teja e incorpora dos “txoritokis”, uno en cada faldón, alineados en el mismo eje, que garantizan una altura libre suficiente en el altillo.
C1
C2
C3
D1
D2
D3
E
F1
F2
F4
G

OTROS PROYECTOS

A

ERLE-ETXE

A

RESIDENCIA INTERGENERACIONAL

A

CENTRO EMERGENCIAS