A

EMAKUMEEN ETXEA

Casa de las mujeres de Galdakao

Estado: Proyecto de Ejecución

Cliente: Ayuntamiento de Galdakao

Ubicación: Romualda Zuloaga, Galdakao

Tipo de obra: Equipamiento social y administrativo

Superficie: 960m2

Año: 2024-Presente

Equipo/Colaboradores: Equi Estudio

B
El proyecto de la Casa de las Mujeres de Galdakao recoge las cuestiones que se trabajaron en el anteproyecto realizado por el estudio LZB Arkitektura y en las sesiones participativas promovidas por el ayuntamiento y guidas por la cooperativa Hiritik at e incorpora temas tratados en varias reuniones con los departamentos de igualdad y urbanismo, así como la información obtenida en la visita de varias Casas de las Mujeres.
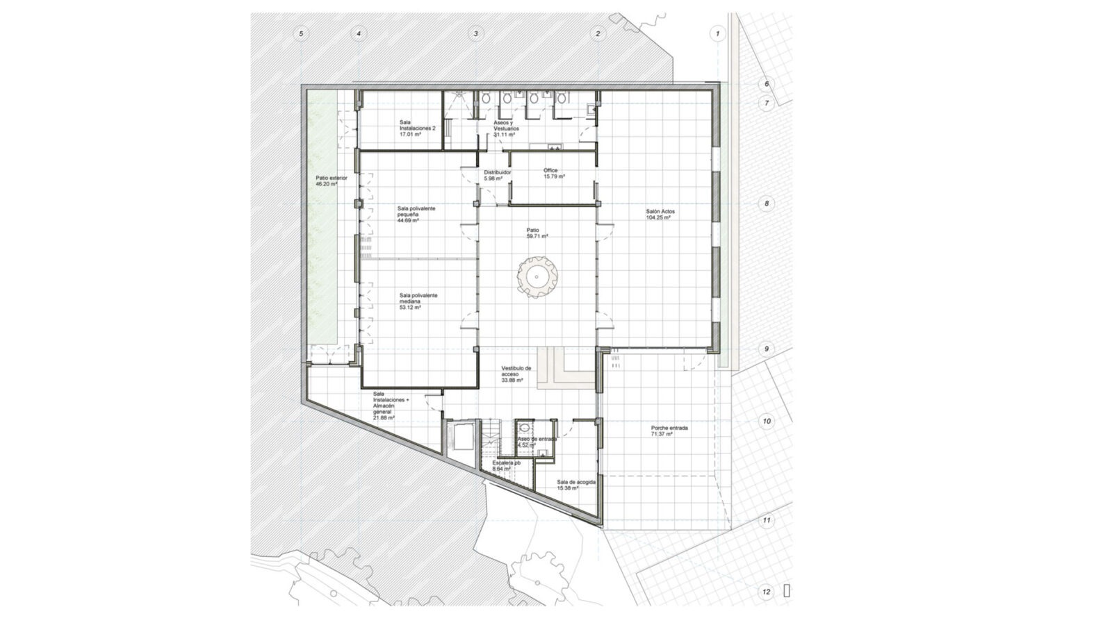
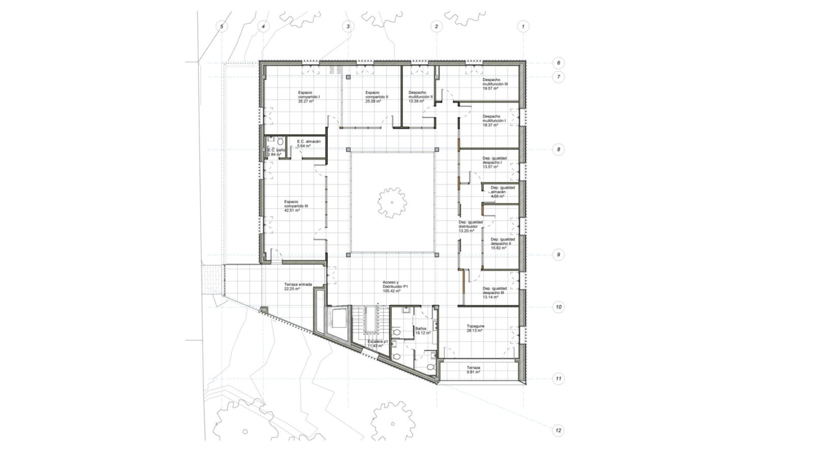
El volumen sencillo y compacto de dos plantas que conforma la Casa de la Mujer se ubica en una parcela en ladera y forma rectangular, en el barrio de Urreta en Galdakao (Bizkaia). El edificio se extiende a las alineaciones máximas de la parcela en las cuatro fachadas, retranqueándose en varios lados y salva la diferencia de cota de aproximadamente una planta entre la calle superior Aranzelai bidea y la Plaza Romualda Zuloaga: la fachada oeste se retranquea 3 m hacia el interior, generando un patio inglés hacia Aranzelai bidea; asimismo, en el vértice suroeste de la planta primera se obtiene un porche con acceso desde la calle mediante una rampa que se despliega sobre el patio inglés; en el vértice sureste se obtiene un amplio porche en relación directa con la sala de actos polivalente grande de la planta baja y la plaza Romualda Zuloaga.
El programa se resuelve en torno a un patio central cubierto. La planta baja se abre hacia el entorno en las fachadas oeste y este mediante varios paños de vidrio integrados en la fachada modular. El porche este, además de potenciar el encuentro entre el interior del edificio y la plaza, rompiendo así las dinámicas público-privadas y generando una zona cubierta, facilita la ampliación de la sala de actos hacia la plaza. La relación entre el edificio y la plaza se impulsa mediante la disposición de un banco corrido rematado con una jardinera en la fachada este.
La disposición del patio inglés en la fachada oeste y la abertura de la fachada este garantizan la iluminación y ventilación natural de varias estancias de la planta baja con orientación oeste-este y el distanciamiento con respecto a los muros contra terreno.
En cuanto a la construcción y los materiales se refiere, se plantea una estructura de muros de contención, muro de fachada este y pilares y vigas de canto de hormigón armado y forjados de prelosas de hormigón armado. Para el cerramiento vertical se ha optado por la solución de una fachada ventilada que combina los paneles de aluminio y de composite lacado con un acabado cerámico en el zócalo del edificio.
C1
C2
C3
C4
C5
C6
C7
D1
D2
E
F1
F2
F3
G

OTROS PROYECTOS

A

ESTUDIO LA SALVE

A

CUBIERTA AIETE

A

CENTRO EMERGENCIAS