A

ZALDIBIAKO UDALA

Nuevo Ayuntamiento

Estado: Consurso

Cliente: Ayuntamiento Zaldibia

Ubicación: Zaldibia

Tipo de obra: Equipamiento administrativo

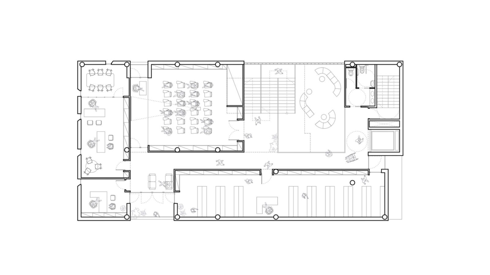
Superficie: 1.300m2

Año: 2017

Equipo/Colaboradores: Imanol Esperesate Azpiazu Arquitecto

B
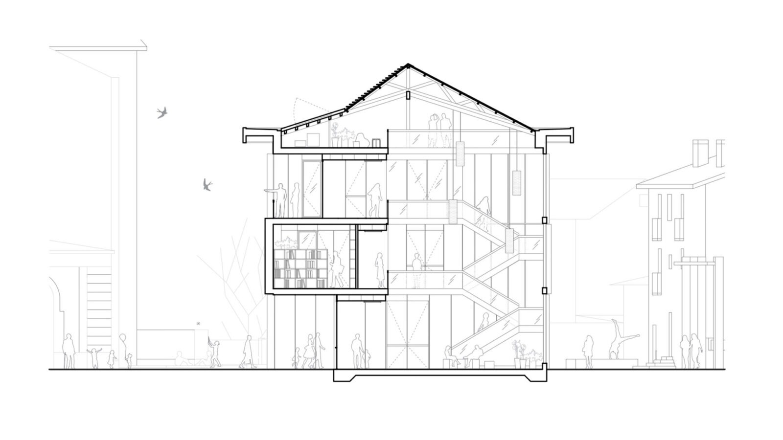
Con el objetivo de obtener una plaza más compacta donde el nuevo ayuntamiento, la iglesia, los comercios de la calle Santa Fe y la casa Albisu formen las cuatro caras, se decide demoler la antigua escuela-casa de cultura y reubicar el nuevo ayuntamiento en un lateral, acercándolo más a la casa Olanoetxea; alineándolo con la calle Santa Fe y orientando la fachada principal hacia la plaza de forma perpendicular al pórtico de la iglesia. Asimismo, para reafirmar la idea de integridad y unidad de la plaza, se propone cubrir una parte del frontón que se apoya en la pared izquierda y en los pilares que se adhieren a los del pórtico de la iglesia junto al frontón.
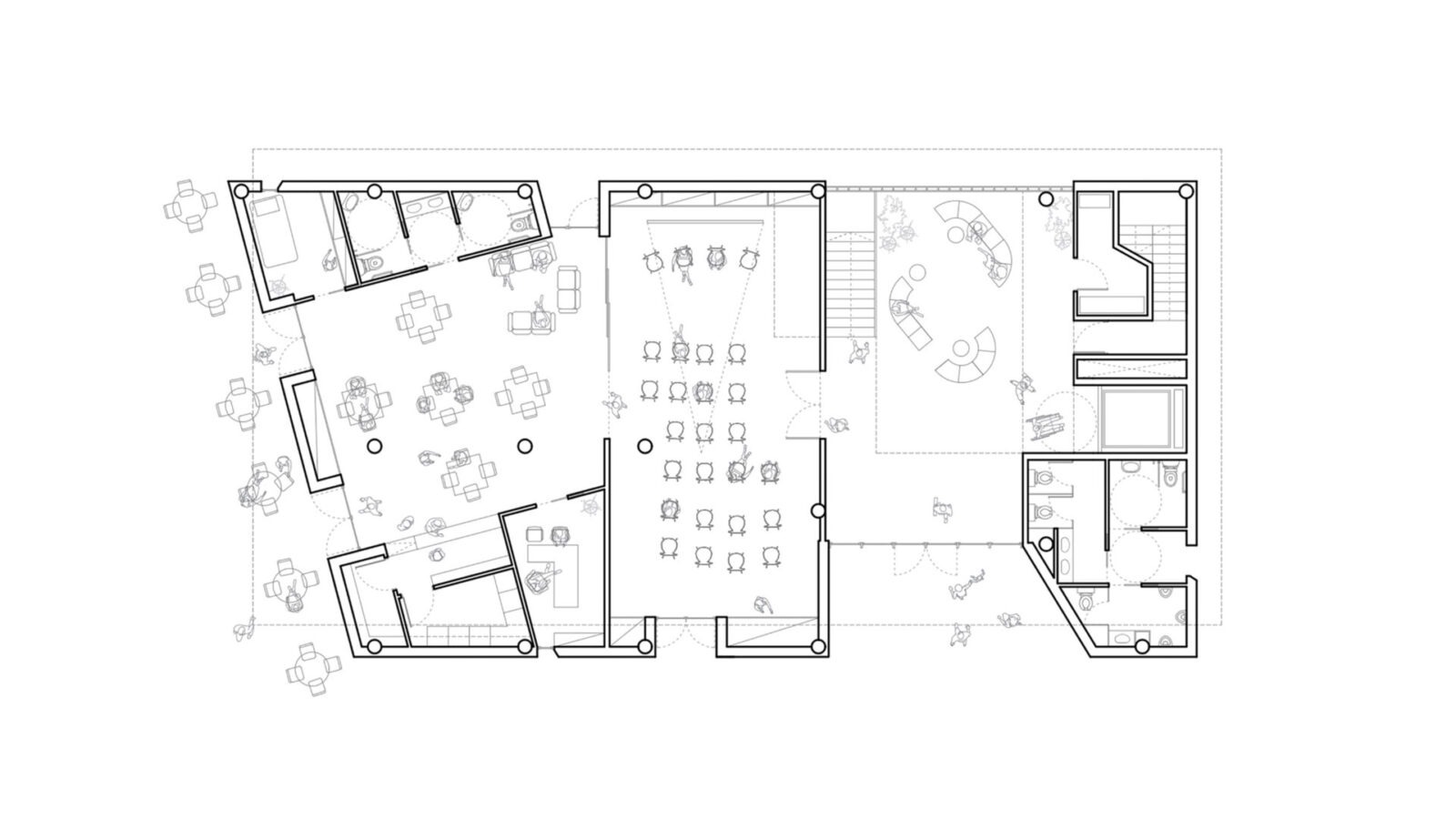
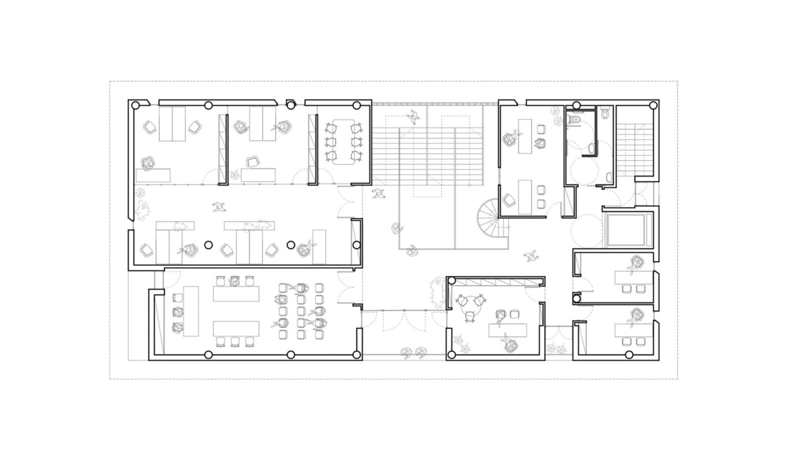
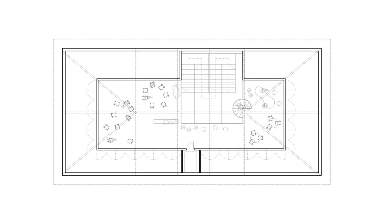
El uso principal de ayuntamiento se complementa con los usos secundarios de hogar del jubilado y de espacio polivalente. Los usos se agrupan como si fueran “bloques” compactos que se apilan encima y unos al lado de otros. Dichos bloques, materializados mediante un aplacado de piedra con juntas estrechas, se iluminan a través de fisuras verticales que consisten en las aberturas de ventanas, puertas, ventanales y balcones.
La disposición de los bloques está relacionada con los usos. En la planta baja se ubican los usos externos al ayuntamiento; en la primera los usos con mayor relación con el público; y en la segunda los usos destinados a la administración y a los actos políticos.
C1
C2
C3
C4
D1
D2
E1
F
F1
F2
F3
F5
F6
G

OTROS PROYECTOS

A

CEIP MANUELA ZUBIZARRETA

A

PORTAL ERCILLA

A

CEIP ISPASTER HLHI