A

BARRENKALE_ETXEA

Reforma Piso

Estado: Construido

Cliente: Privado

Ubicación: Casco Viejo, Bilbao

Tipo de obra: Vivienda

Superficie: 60 m2

Año: 2020

B
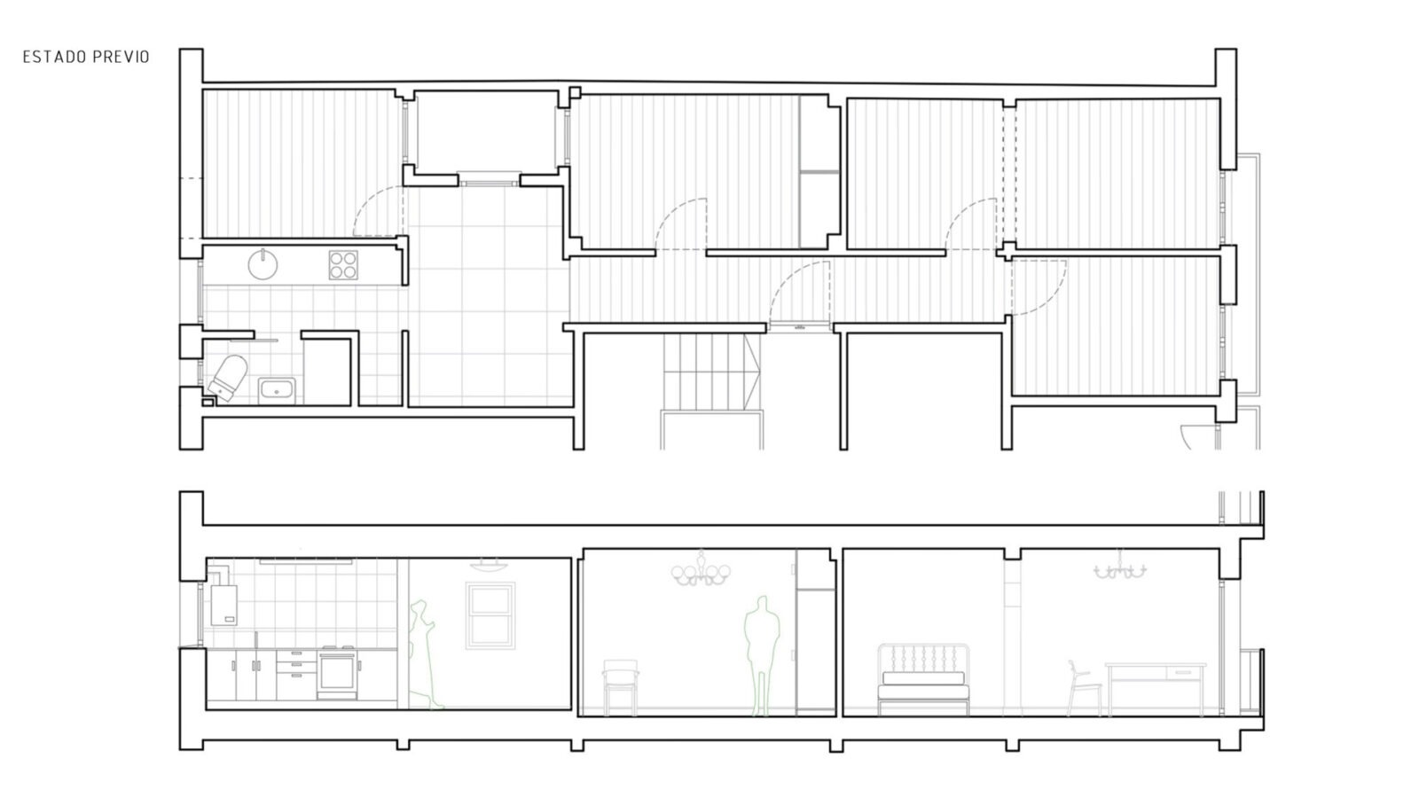
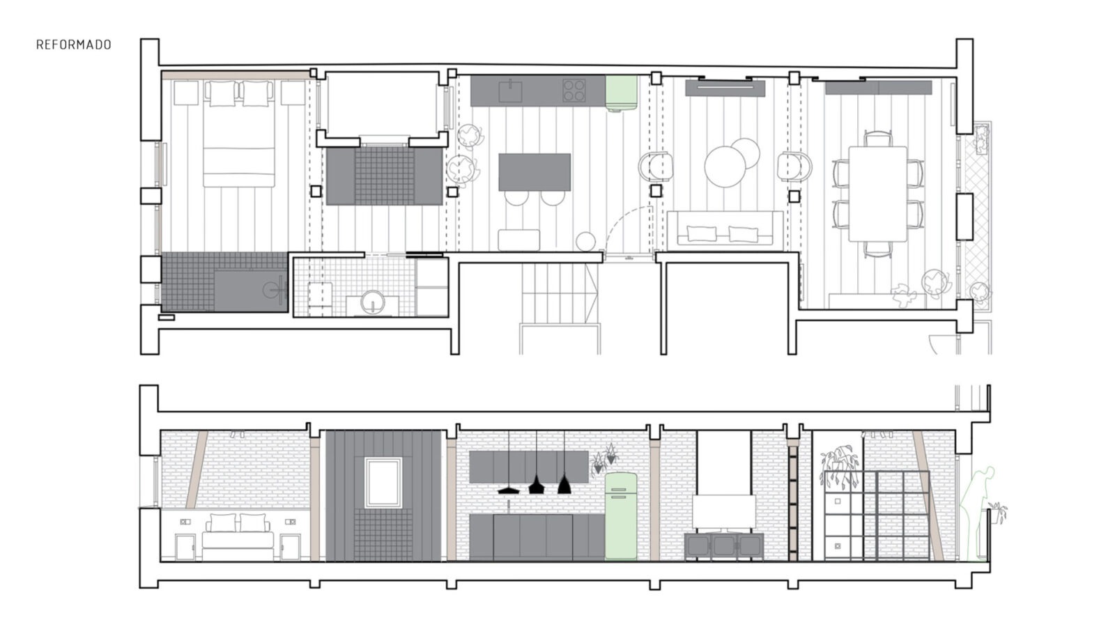
La vivienda está ubicada en la calle Barrenkale, en el Casco Viejo de Bilbao, en un lote medieval. Originalmente, contaba con 60 m² distribuidos en cinco estancias: salón y dormitorio hacia la calle, un dormitorio intermedio, una antecocina al patio de luces, y un último dormitorio con cocina y baño en la parte trasera. La estructura presentaba problemas como desplomes y desniveles, con pilares y vigas ocultos en la tabiquería. El proyecto busca reordenar los espacios para crear áreas más fluidas y abiertas, separando las zonas públicas, que dan a la calle, de las privadas, que se orientan hacia el patio y la cárcava. Se propone una distribución interrelacionada con espacios totalmente abiertos, donde una "caja vestidor" divide las áreas diurnas de cocina-comedor-salón y las nocturnas de habitación-ducha. El aseo se enfrenta al vestidor, siendo el único espacio cerrado y tabicado. Se destacan los materiales estructurales como pilares, vigas de madera y la medianera de ladrillo, remarcada con diferentes franjas de cartón-yeso. El color negro se incorpora sutilmente en elementos metálicos como el refuerzo metálico de empresillado de uno de los pilares, las estanterías y zócalos metálicos en contacto con el suelo y la medianera de ladrillo y los paneles de la “caja vestidor”, así como en el mobiliario fijo.
C1
C2
D1
D2
D3
D4
E
F1
F2
F3
F4
G

OTROS PROYECTOS

A

ESTUDIO LA SALVE

A

RESIDENCIA INTERGENERACIONAL

A

ZALDIBIAKO UDALA